Seven bore holes were mapped…

ERO number

019-5018

Comment ID

59847

Commenting on behalf of

Port Elgin Beach Preservers

Comment status

Comment approved More about comment statuses

Comment

Seven bore holes were mapped by Hydrogeology Consulting Services...the report was submitted on March 3, 2021, a year ago. The site location was changed on November 22, 2021. Attached is the most accurate comparison map completed on March 4, 2022.

It is important to note that the buildings for both sites would be 1.1 m of foundation fill above grade level, 10 m of wall height, 3m of eaves + roof structures (cupola, HVAC, etc.), for a total of 14.1 m or 43 feet in height.

There are serious concerns about the stability of the soil to handle this development.

Copied from CMT Geotech Study Word Document:

"It is understood that the proposed development is to consist of a 2-storey restaurant, and a 2-storey tourism, harbour services, tuck shop, event space and washroom facility on the west side of the development. Additionally, a 1.5-storey indoor children's play space structure, a 1-storey food sales, recreation and market space structure is proposed for the central portion of the development"

On November 22, 2022, the entire site plan was changed: building (banquet hall) removed, dimensions changed, uses changed. It now consists of four main buildings plus a multi-purpose outdoor pavilion for social events. The building on the northernmost end, a 1.5 storey indoor play space and ice cream store, is now longer in length. The two largest buildings adjacent to Harbour Street are two storeys in height: It is understood that prior to construction, the site grades will be raised approximately
1.14 m (3.74 ft) to 1.82 m (5.97 ft) above the existing grades in order to achieve a proposed
finished floor elevation of 179.50 m. The fill, plus 10 m of wall, plus eaves, roofing, and rooftop structures to house HVAC and exhaust systems, for a total of 14.5 m height or 47.6 feet.

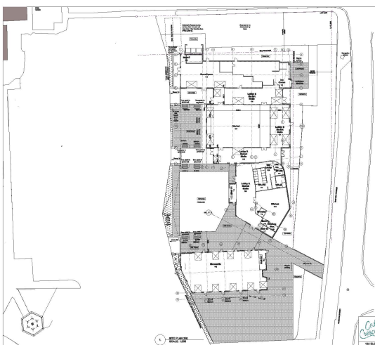
These two buildings are comprised of a second floor restaurant and outside terrace and patio, over the main floor retail space and market area. The fourth building is listed as "mercantile" which, on the site plan, is intended to house nine retail outlets. See the attached site plan shared at the January 10 Council Meeting.

There is no longer a guarantee of a tourism office or marina shop or ice rink or volleyball courts. There are accessible washrooms in the Market building below the rooftop terrace restaurant.

The CMT Geotech Study states:

"Due to the presence of fill, unsuitable native soil and the anticipation of wet to saturated soil conditions, it is imperative that the founding soils be assessed at the time of construction by qualified geotechnical personnel in order to confirm their founding suitability. "

"The site preparation for the proposed development is anticipated to include the removal of any existing structures, removal or relocation of any existing services, the subexcavation of all unsuitable fill and native soils deemed not suitable for supporting of the design bearing capacity, followed by the placement of structural fill (approximately 1.0 m or as required) and/or installing a deep foundation system and site grading to achieve proposed grades."

Comment: At the February 14 Council meeting, the CAO was "not prepared" to answer the question of where the fill was coming from.
Question: what tests will be done to ensure that the fill free of contaminants, and safe to be used on the relic sand beach. What tests will be conducted to deem the fill suitable for supporting a two storey building?

Thank you